Przejdź do treści
Strona główna

Primary links

  • Firma
  • Projekty
  • Lista referencyjna
  • Do pobrania
  • Oferta specjalna
  • Kontakt
  1. Strona główna
  2. Aktualności
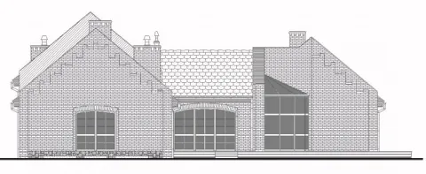
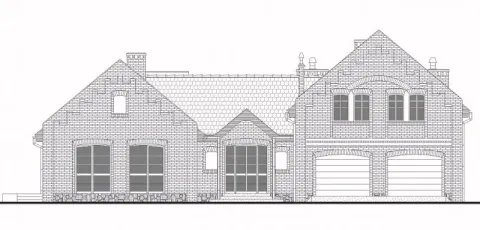
  3. Projekt domu jednorodzinnego - Suchy Las k/Poznania

Projekt domu jednorodzinnego - Suchy Las k/Poznania

06.06.2011 - 02:00

Projekt domu jednorodzinnego dla inwestora indywidualnego - Poznań / Suchy Las

Poprzedni Dalej
  • ARANŻACJE WNĘTRZ I KOLORYSTYKA
  • BUDYNKI BIUROWE
  • BUDYNKI MIESZKALNE
  • HALE PRODUKCYJNE I MAGAZYNOWE
  • KONSTRUKCJE INŻYNIERSKIE
  • OBIEKTY HANDLOWE I USŁUGOWE
  • INNE

FIRMA PROJEKTOWO-BUDOWLANA
PROBUD.EXE
Grzegorz Hoppel

ul.Heleny Szafran 1, 60-693 Poznań
tel. +48 61 823-72-01, fax. +48 61 851-67-04,
tel.kom. +48 601 309 405
e-mail: biuro@probudexe.pl

Footer menu

  • Polityka prywatności
  • RODO
  • Regulamin
  • Facebook
© 2026 Probudexe Poznań, All rights reserved.